Продажа 3х-комнатной квартиры

71 м²
Площадь
51.00 м²
Жилая площадь
6.00 м²
Площадь кухни
2/3
Этаж

5 160 000 ₽

72 677 ₽ за м²

ID объявления 12494648

Поделиться

Добавить в избранное

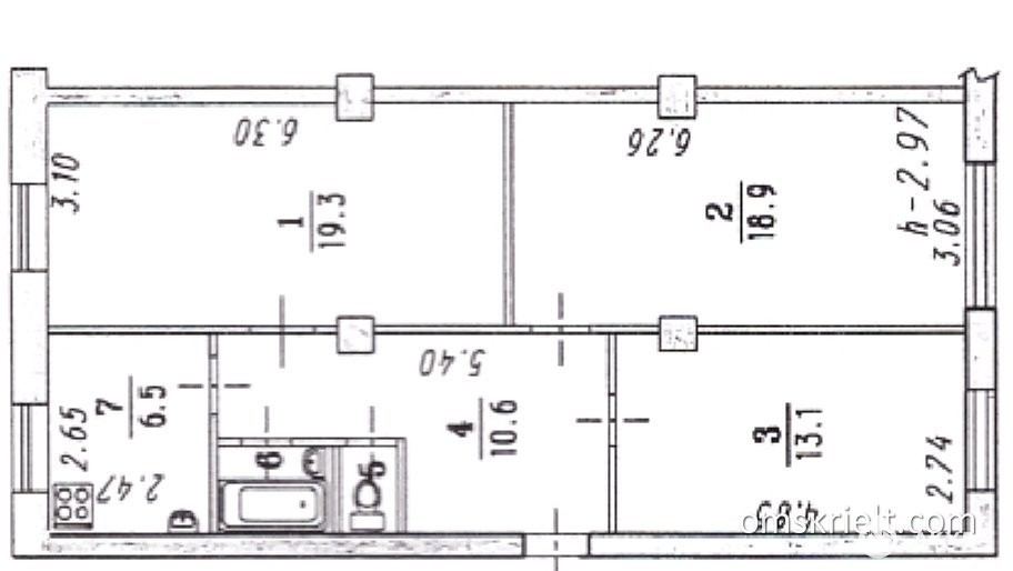
На чистой продаже хорошая полнометражная 3-комнатная квартира, три просторные изолированные комнаты ( 19, 3+18, 9+13, 1 ) на две стороны, высокие потолки 2, 97 м, отличная планировка, квартира теплая и светлая, большой коридор. Тихий центр, 3 минуты до СКК Иртыш, 10 минут до парка Культуры и Отдыха. Дом кирпичный, крепкий, поменяна крыша и коммуникации, в подъезде сделан ремонт, хорошие соседи. Во дворе детский сад. Документы готовы, без долгов, обременений и проблем!

Дата обновления: 18 февраля 2026